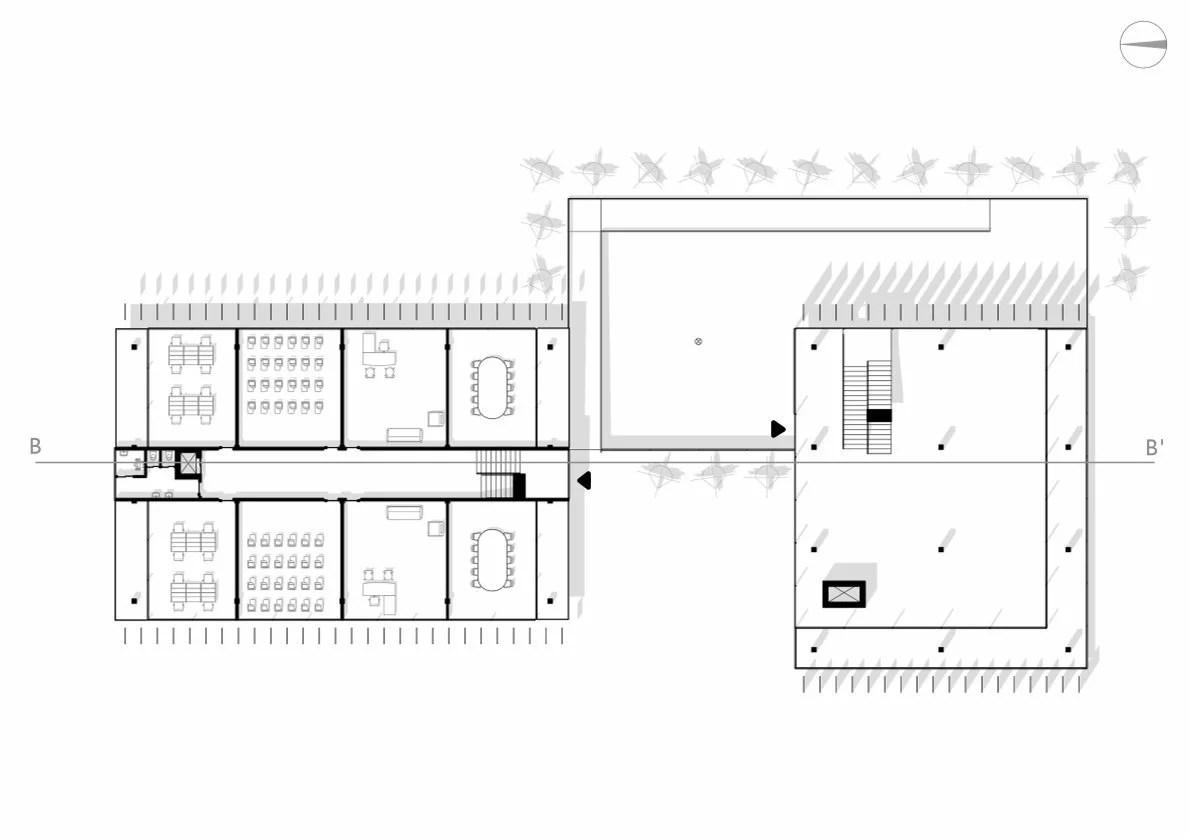
This project proposes an expansion of the Llotja School of Design in Barcelona through the addition of a new academic building within the existing campus. The extension is designed to accommodate workshops, classrooms, an auditorium, and exhibition spaces, while improving the relationship between the school and its surroundings.

The proposal is organized as two complementary volumes. The first is a partially sunken, two-level building that houses an auditorium and an exhibition space. The second volume is an elevated teaching block, lifted to keep the ground floor open. This decision responds to the empty plot directly in front of the site, which could become a future park or public space—an extension that the project anticipates by allowing continuity through the building’s open base. The raised block contains the classrooms and workshops, and both buildings are connected by a semi-buried walkway.

A café is located on the upper level, surrounded by an outdoor terrace with vegetation. In both buildings, the roofs are conceived as green, accessible terraces for students—spaces for gathering, informal study, interaction, and even open-air exhibitions. Vertical solar louvers protect the façades from direct sunlight and extend upward to provide shade for the walkable roof areas as well.

Previous
Previous

nau atesa

Next
Next

can travé