This project proposes a social-housing scheme for a vulnerable community within an abandoned industrial building located in a block in Sant Martí, Barcelona. The intervention is conceived as an adaptive reuse strategy that preserves the existing structure while transforming the building into a compact, livable residential environment.

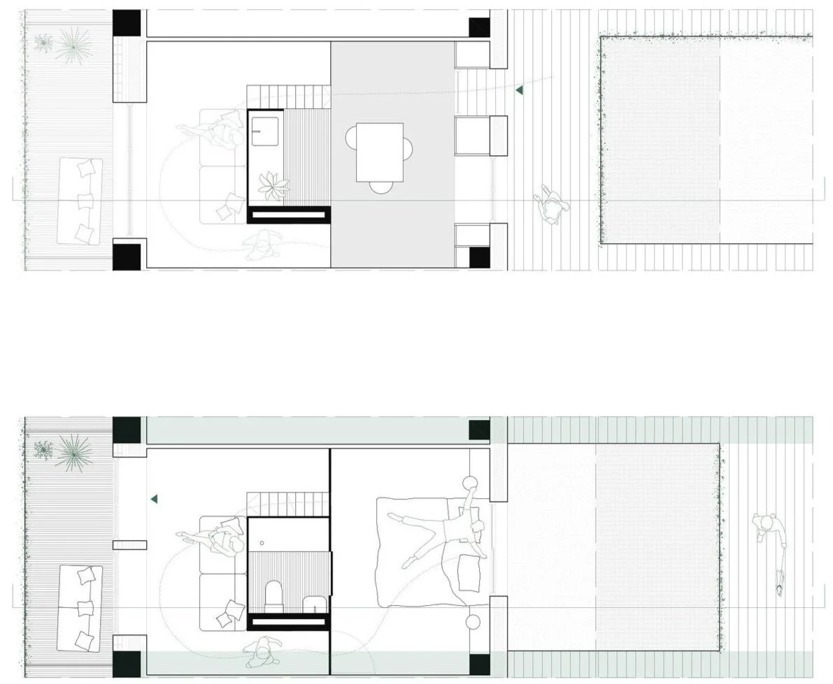
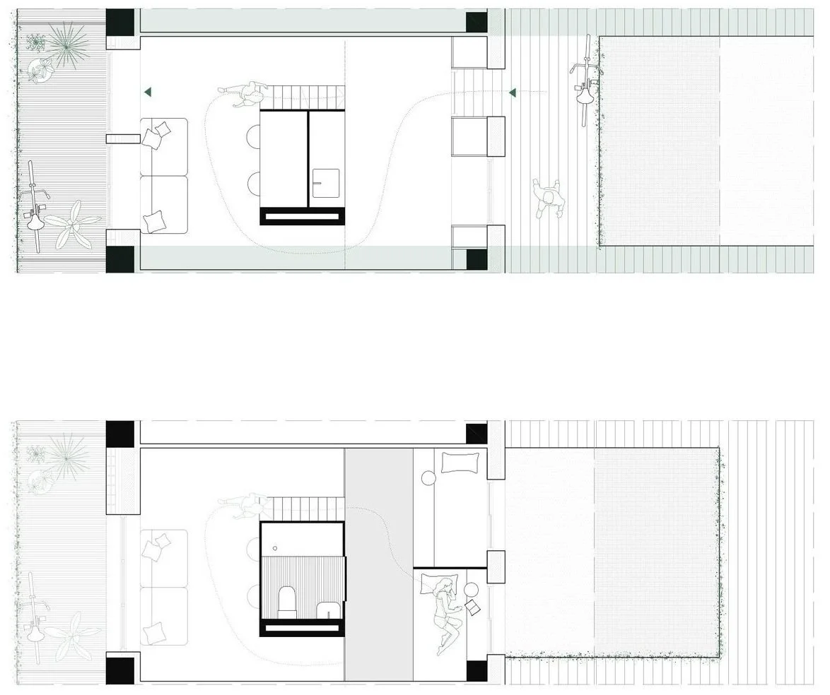
One of the main challenges was the structural mismatch between levels: the ground floor uses a longitudinal beam direction, while the upper floors shift to a transversal one, with a slightly different column layout as well. This required a careful re-organization of the plan and a modular approach to fit the new program within tight constraints. The housing is resolved through three compact typologies—a single-person unit, a two-person unit, and a four-person unit designed to maximize functionality in minimal floor area through repetition, rational structure, and efficient service cores.

Access to the dwellings is organized around a central internal walkway/passage, conceived not only as circulation but also as a shared living space. This central spine is punctured by a series of patios/light wells that bring daylight deep into the building and create visual connections across different levels. These voids are staggered along the section—sometimes reaching the right façade, sometimes the left—made possible by the alternating placement of duplex units. The result is a dynamic interior landscape where circulation, light, and social encounter overlap, turning the former industrial shell into a connected, communal housing system.

Previous
Previous

collective housing sant marti

Next
Next

llotja school